UL热线:13916126869咨询热线:021-67558777
法腾电力科技有限公司
智能云平台
当前位置: 首 页>> 新闻资讯>> 行业新闻>> 美标UL 38kV金属铠装空气绝缘开关柜

美标UL 38kV金属铠装空气绝缘开关柜

发布日期:2026-01-28 作者:法腾电力 点击:

1.   引言


国内40.5kV开关柜使用的IEC、GB标准,与北美ANSI/IEEE标准的产品有很大不同。因而需要理解IEEE标准,按照IEEE标准设计生产开关柜。

美标开关产品的主要标准

IEEE C37.20.2  交流1000V以上金属铠装式开关设备

C37.04交流高压断路器标准额定结构

C37.06 交流高压断路器推荐等级

C37.20.7 金属封闭开关设备内部故障试验

C37.11 电气控制要求

C37.55 金属铠装开关柜一致性试验规程


2.   北美开关柜的基本要求

2.1.  产品参数要求

额定电压及绝缘要求见表1

表1  额定电压及绝缘水平

额定电流(A): 1200、2000、3000、4000;额定频率:60Hz

额定短路电流耐受时间: 2s

额定峰值耐受电流: 2.6倍有效值


2.2.  使用环境

使用温度: 最低-30OC  最高 40OC

海拔高度:不超过3300英尺(1000米)

防护等级:室内NEMA250 1类(IP20),户外 3R类(IP24)


3.   开关柜结构

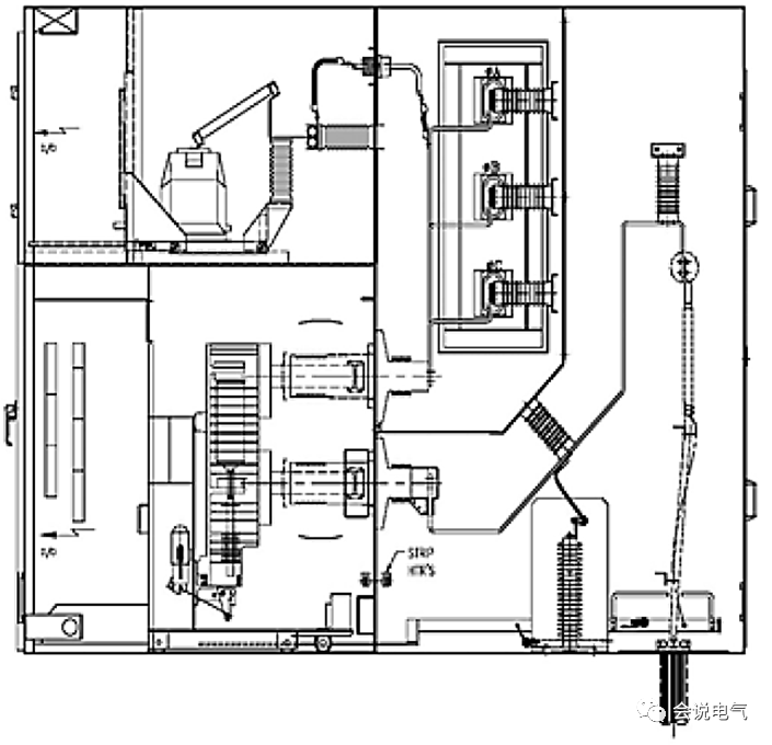
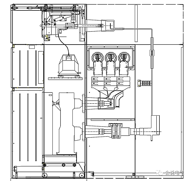
3.1.  15kV美标开关柜主流产品的宽度是36英寸,即914mm 宽度的双层断路器开关柜。38kV开关柜和15/27kV类似,也有双层断路器设计,或者断路器、电压互感器双层结构。小型化38kV真空断路器,可以满足双层结构,多数是落地式结构,宽度有42英寸1066mm(150kV BIL)、48英寸1219mm(170kV BIL)、60英寸1524mm(200kV BIL)。


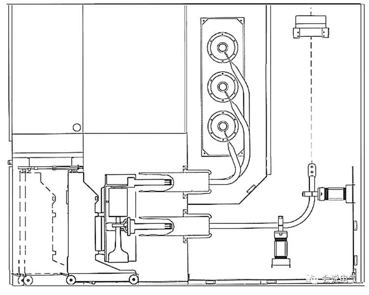
电流互感器安装在一次触头盒上,便于维护、更换,每相上下触头盒可以各安装两个CT,每相共可以安装4个CT。


下图美标38kV开关柜触头盒,低压穿心式电流互感器安装在触头盒前部手车室内,这种套管只有采用电容等压屏蔽设计才能满足绝缘和小直径的要求,电流互感器工频耐受电压3kV,冲击耐压10kV,内径只有190mm,无法满足80kV绝缘耐压要求,通过接地屏蔽,实现了功能要求,满足了绝缘性能,尺寸小,安装方便。


美标开关柜采用专用的验电、接地手车作为检验回路是否带电,以及回路安全接地的手段,因此不使用接地开关。


3.2.  产品特征要求

3.2.1.结构设计要求

所有带电体封闭在接地的金属隔室内,自动活门,主回路母线导体和连接全部绝缘,断路器隔室门可以作为继电器安装板。

手车驱动辅助触点TOC,固定安装在隔室内部的辅助开关,用来提供断路器在工作位置时的位置信号,TOC/NO当断路器不在工作位置时,辅助开关在常开位置,TOC/NC当断路器在工作位置时辅助开关处于闭合位置。

机构驱动辅助触点MOC,固定安装在隔室内部的辅助开关,用来提供断路器在分、合闸位置时的位置信号,MOC/NO当断路器在分闸位置时,辅助开关在常开位置,MOC/NC当断路器在合闸位置时辅助开关处于闭合位置。

3.2.2.机械联锁

应提供继续联锁保证正确的操作顺序:

a.    断路器在合闸状态不能摇进摇出

b.   断路器在没有完全咬合或与带电体有足够的安全距离不能合闸

c.    只有二次回路断开,才可以接近或隔离电压互感器熔断器

d.   保持操作人员意外接触弹簧储能机构的释能危害

a)     当断路器机构储能时,联锁应阻止断路器安全从隔室中抽出;

b)    断路器合闸时,联锁应阻止断路器从隔室中抽出

c)     断路器抽出时操作机构自动释能,应提供电气联锁保证断路器不会再次自动储能;

d)    断路器储能状态不能被摇进到工作位置。


3.3.  开关设备还应符合下列要求

l 金属封闭结构或绝缘材料封闭型机构;

l 断路器应是抽出式结构或具有等效措施,在母排带电情况下,能安全地将断路器断开

l 抽出式断路器不论在工作位置还是断开位置,应有机械锁定机构,在断路器抽出状态下,带电静触头被自动覆盖;

l 应提供足够数量的接地和短路设备,以保证电路安全地进线维修工作;

l 电缆入口应有能防止漏水沿着电缆开关柜内部的措施;

l 仪表、开关、指示灯、按钮、操作手柄等应有标明其用途和操作位置的耐久铭牌。

4.   美标开关柜的试验及认可

美标开关柜需要通过如下试验,并通过UL认证,以38kV 1200A 40kA为例,开关柜试验项目如下。

5. 结语

随着中国电气制造业的快速发展,中国 开关柜产量已供大于求,IEC标准和GB标准接近,因此出口到IEC产品国家相对容易,在满足参数要求的情况下可以被客户接受。北美电气产品相对陈旧,问题很多,但市场巨大,由于北美地区IEEE标准和GB 标准差异很大,需要按IEEE标准设计产品才能够销售到北美市场及一些采用美标产品的国家、地区如菲律宾、中东及南美地区,国内有些美资如通用汽车、英伟达等企业也采用美标产品。


来源:会说电气


本文网址:https://www.shfateng.com/news/1769570145.html

相关新闻:

网站地图 | 主营区域: 北京   安徽   广西   河北   湖北   湖南   山东   上海   天津   重庆
Copyright © 法腾电力科技有限公司All rights reserved. 沪ICP备2021017219号-2

遇到问题?请给我们留言

请填写您的真实手机号码,我们将尽快回复您