UL热线:13916126869咨询热线:021-67558777
法腾电力科技有限公司
智能云平台
当前位置: 首 页>> 新闻资讯>> 行业新闻>> 美标中压铠装开关柜的设计(四)

美标中压铠装开关柜的设计(四)

发布日期:2026-04-13 作者:法腾电力 点击:

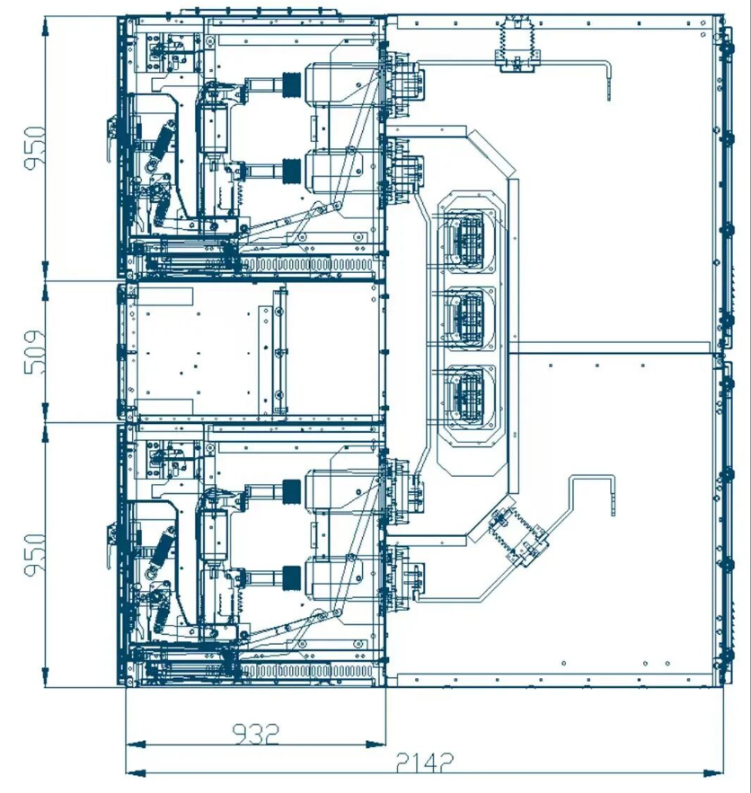
美标双层断路器开关柜的隔室设计。传统美标开关柜仪表、保护等安装在断路器隔室门上,前柜深度增加10英寸用于二次回路安装,没有单独的仪表室安装二次控制回路,一般不具备抗内部电弧能力。而内部电弧能力的美标开关柜,一般在上下层隔室之间有一个仪表室,前柜深度不增加。
前柜隔室分配,断路器手车隔室高度950mm,中间仪表室高度509mm。前柜上下隔室高度950mm,再分一半即950/2=475mm用于电压互感器、电压互感器、熔断器等辅助手车隔室。对于熔断器手车,需要采用950mm高度的隔室。
关于二次插头,对于美标铠装开关柜,标准没有规定二次插头的连接方式。
一般二次插头安装在手车底部,便于上层断路器方便插拔和检查,有自动连接和手动连接两种,手动连接和我们常规的中置柜类似,采用手动将航空插头插入安装开关柜的插座上,不论安装在底部还是顶部,都是手动插入。因此手动插拔一般将插座放置在断路器机构箱下部,机械联锁和底板互锁,即手车摇进后航空插头不能拔下。
上图二次插头通过拉杆,可以将插头插入断路器底部插座,保证二次插头接通。而自动插入二次插头,和低压抽出式框架断路器类似,需要断路器手车有三个位置,即隔离、试验和工作位置,一般设计从隔离到试验位置摇进距离40mm,从试验位置到工作位置摇进距离210mm,即断路器手车从隔离到工作位置行程250mm。

推进机构和低压框架断路器一样,丝杠螺母机构,丝杠节距10mm,摇进250mm,即25圈。从隔离到试验位置摇4圈,从试验位置到工作位置,再摇进21圈。

北美开关柜需要断路器手车机械位置指示,即通过柜门观察到手车位置—隔离、试验、工作。
美标接地触头需要承受和开关柜一样的短路电流,这是因为美标开关柜不使用接地开关。使用接地试验手车用于接地保护,因此接地手车需要将母线或电缆通过柜体接地触头接地,接地触头需要承受可能发生的短路电流。

由于不同电流、短路容量规格的断路器手车具有相同的宽度等外形尺寸,因此底盘需要设计限制装置,REJECTION FEATURE,避免等级错误的断路器手车插入开关柜,造成故障,如2000A的断路器手车推进1200A开关柜隔室并摇进到工作位置,就需要等级限制措施。

一般通过断路器手车底部安装挡块,开关柜底板安装挡板,如上图12项,即挡板开口与对应等级的断路器手车挡块位置相同,既可以无缝插入,而其它规格的就不能进入。需要根据所有电压等级、电流规格、短路容量不同,系统逻辑设计挡块、档口规则,一劳永逸,无需根据项目调整,避免出现错误导致误操作。同样对于辅助功能隔室,也需要相应的限制装置,避免错误的电压互感器、电源互感器手车进入隔室,造成事故。


来源:会说电气

本文网址:https://www.shfateng.com/news/1776068155.html

相关新闻:

网站地图 | 主营区域: 北京   安徽   广西   河北   湖北   湖南   山东   上海   天津   重庆
Copyright © 法腾电力科技有限公司All rights reserved. 沪ICP备2021017219号-2

遇到问题?请给我们留言

请填写您的真实手机号码,我们将尽快回复您